100吨水泥仓尺寸与价格-附带基础图纸
100吨水泥仓特点
水泥仓|水泥罐是一种封闭式的储存散装物料的罐体,适合储存粮食、水泥、粉煤灰等各种散装物料,罐体上装有料位系统,能够显示物料的位置和多少,破洞装置可以解除物料沉积太久而造成的结实。水泥仓和螺旋输送泵配合使用能够把物料输送到各个位置,该罐体安装方便,安全可靠是各种搅拌站的理想散装水泥仓储存罐。
100吨水泥仓主要型号及参数:
型号 仓体直径 仓体高度 椎体高度 椎体高度 搭配的螺旋输送机
100T 3m 9.6m 2.5m 2m LSY 219型/273型
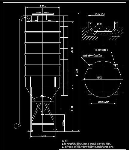
100吨水泥仓结构示意图
水泥仓|水泥罐由以下部分组成:仓体钢结构部分、爬梯、护栏、上料管、除尘器、压力安全阀、高低料位计、卸料阀等。
水泥仓|水泥罐为圆柱形结构,底部由四条圆管支腿支撑整个仓体,整仓全部为钢结构形式,焊接而成;顶部设有除尘器及压力安全阀。


散装水泥仓购前须知
问题一:散装水泥仓都有哪些规格?
联华:散装水泥仓一般在国内及陆运的国外使用,联华生产的散装水泥仓有30T-200T不等。
问题二:散装水泥仓价格是多少?
联华:不同型号价格也不同。详情可以拨打: 0371-86169380 来进行咨询!
问题三:质保多久?
联华:联华公司所生产的设备均质保一年(易损件、人为除外)。




